Mansarda in vendita

Giovo, Via Pistol - Ceola
€ 42.000
Prezzo aggiornato
3 locali 3 locali
73 Mq 73 Mq
1 bagno 1 bagno

Mansarda in vendita

Giovo, Via Pistol - Ceola

Descrizione annuncio

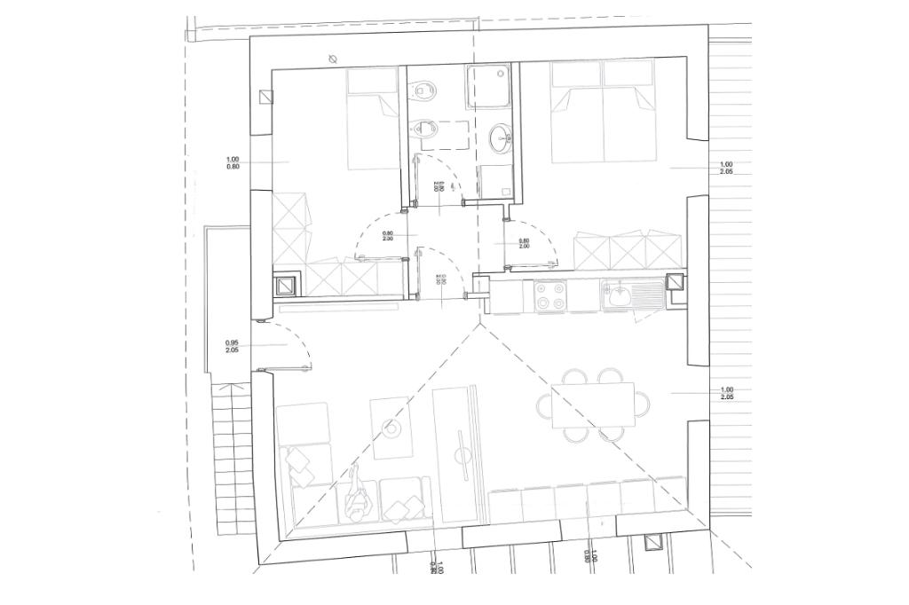
CEOLA - Nel cuore della località di Ceola, nel comune di Giovo, è disponibile una mansarda di 73 mq in vendita.

Situata all'ultimo piano con ingresso indipendente dal secondo, questa proprietà offre un'opportunità unica per chi desidera personalizzare il proprio spazio abitativo.

Attualmente categorizzata come soffitta, la mansarda disporrà di tre locali, tra cui due camere da letto, un bagno e soggiorno-cucina in open-Space.

Un balcone completa l'offerta, regalando uno spazio esterno privato.

Un punto di forza significativo è la presenza di progetti di cambio destinazione d'uso già approvati dal comune, che consentono la trasformazione in un trilocale.

Questa caratteristica rende l'immobile particolarmente interessante per chi cerca un investimento con potenziale di sviluppo.

La posizione in una zona tranquilla e immersa nel verde aggiunge ulteriore valore, offrendo un rifugio sereno lontano dal caos cittadino.

Mostra tutto

Nelle vicinanze

Trasporto pubblico Trasporto pubblico
Trasporto pubblico
80 m
Scuole
Scuole
2,1 Km
Scuole Scuole
Scuola Secondaria
1,2 Km
Scuole
1,2 Km
Scuola Primaria Verla Giovo
1,3 Km
Scuola primaria Albiano
2,7 Km
Scuola secondaria di primo grado Albiano
2,7 Km
Farmacia Farmacia
Farmacia
1,5 Km
Farmacia
2,7 Km
Supermercati Supermercati
Famiglia Cooperativa
1,4 Km
Supermercati
1,4 Km
Coop
2,3 Km
Negozi Negozi
Giova
1,4 Km
Bar Bar
Bar
1,3 Km
Circolo Acli
2,2 Km
Ristoranti Ristoranti
La Vecchia Signora 2.0
1,3 Km
Ristoranti
2,0 Km
Agriturismo Simoni
2,3 Km
Mostra tutto

Caratteristiche

Rif.:
61189115
Piano:
3 di 3 (Piano mansarda)
Balconi:
1
Camere da letto:
2
Arredamento:
Assente
Condizionamento:
Assente
Mostra tutto
Prezzo Prezzo
€ 42.000
Rata mutuo Rata mutuo
€ 199 / mese
Spese annue Spese annue
€ 0
Proponi il tuo prezzoProponi il tuo prezzo

Classe Energetica

Questo immobile è esente da classe energetica
Anno di costruzione:
1940
Riscaldamento:
Assente

Prezzo ridotto di €1 (13%%)

Ti interessa visionare l'immobile?

Fissa un appuntamento  Fissa un appuntamento

Richiedi informazioni

Clicca su Leggi per aprire l'informativa
* Questi campi sono obbligatori

Calcola il tuo mutuo

Semplice e senza impegno
Anticipo

( % )
Mutuo

( % )

pochi semplici passi

inserisci i tuoi dati
Questionario completato
Grazie per aver richiesto un appuntamento senza impegno con un nostro Consulente del Credito e Assicurativo.

Hai inserito correttamente tutti i dati necessari e a breve riceverai una e-mail con un link da convalidare per inviare i tuoi dati.
Affiliato
Studio Lavis Srl
Via Cembra, 20 38015 Lavis (TN)
Via Cembra, 20 38015 Lavis (TN)
Zona: Lavis - Trento Nord - Piana Rotaliana
Mostra su mappa
Orari: Lunedì-Venerdì 8:30-13:00 15:00-19:30, Sabato 8:30-13:00
Affiliato
Studio Lavis Srl
Via Cembra, 20 38015 Lavis (TN)

2026 Tecnocasa Franchising S.p.A. - P. IVA 08365160152 - Via Monte Bianco 60/A 20089 Rozzano (MI). Ogni agenzia ha un proprio titolare ed è autonoma. Privacy policy | Policy utilizzo | Cookie policy